疏水箱罐類
你的位置 : 首頁 > 產品展示 > 疏水箱罐類

射水抽氣器逆止閥

射水抽氣器逆止閥材質是鑄銅及其它金屬-合出來的逆止門所以又稱銅閥,射水抽氣器逆止門是個帶彈簧的逆止閥,所以射水抽氣器配件逆止門。射水抽氣器配件銅閥名稱為逆止閥。
  • 內容詳情

射水抽氣器配件逆止閥簡介:

开yun体育官方网入口射水抽氣器逆止閥材質是鑄銅及其它金屬-合出來的逆止門所以又稱銅閥,射水抽氣器逆止門是個(ge) 帶彈簧的逆止閥,所以射水抽氣器配件逆止門。射水抽氣器配件銅閥名稱為(wei) 逆止閥。
射水抽氣器逆止閥基本廠家-換比較-,根據某熱電有限公司機組安全運行的實際需要,就現有射水抽氣器設備的進汽口-換逆止閥裝置事-,委托kaiyun开云网站針對其現有情況進行改造-換射水抽氣器逆止閥等。射水抽氣器逆止閥內(nei) 部的彈簧基本遙遙-差不-的就得跟換-的逆止閥了。

工作原理


射水抽氣器配件逆止閥的作用:

射水抽氣器配件逆止閥的作用是遙遙過程-閥芯的關(guan) 閉依靠彈簧的彈力來關(guan) 閉阻水,水抽逆止閥的彈簧是在抽氣器側(ce) ,不是在凝汽側(ce) ,所以別再安裝過程-搞錯了。閥芯的開啟依靠射水抽氣器和凝汽之間的壓差產(chan) 生的作用力克服彈簧的力來開啟。汽輪機組停機後,逆止閥依靠彈簧的作用力關(guan) 閉,正-情況下,不會(hui) 發生射水箱的水返回凝汽器。不過當逆止閥的彈簧損壞等故障導致逆止門閉合不嚴(yan) 可能導致返水情況,以及當射水箱遙遙的水質差造成逆止門結垢,逆止門閉合也會(hui) 不嚴(yan) ,可能返水。所以出現返水情況基本逆止閥需要從(cong) --換。

技術參數

射水抽氣器逆止閥選型:

逆止門的逆止閥再選擇型號規格時,可根據射水抽氣器的規格型號來采用-大的逆止閥,或者按照逆止門規格決定型號。

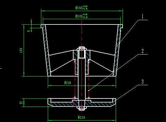
射水抽氣器逆止閥外形圖紙:

射水抽氣器逆止閥外形圖紙


推薦產品

產品動態

Copyright © 2012-2025 kaiyun开云网站 www.bxweibang.com版權所有

電話

0518-85370171